Book a Property Valuation
SSTC

Well Lane, Stock, CM4

Fixed Price £995,000

Semi-Detached House

Overview

4 Bedroom Semi-Detached House for sale in Well Lane, Stock, CM4

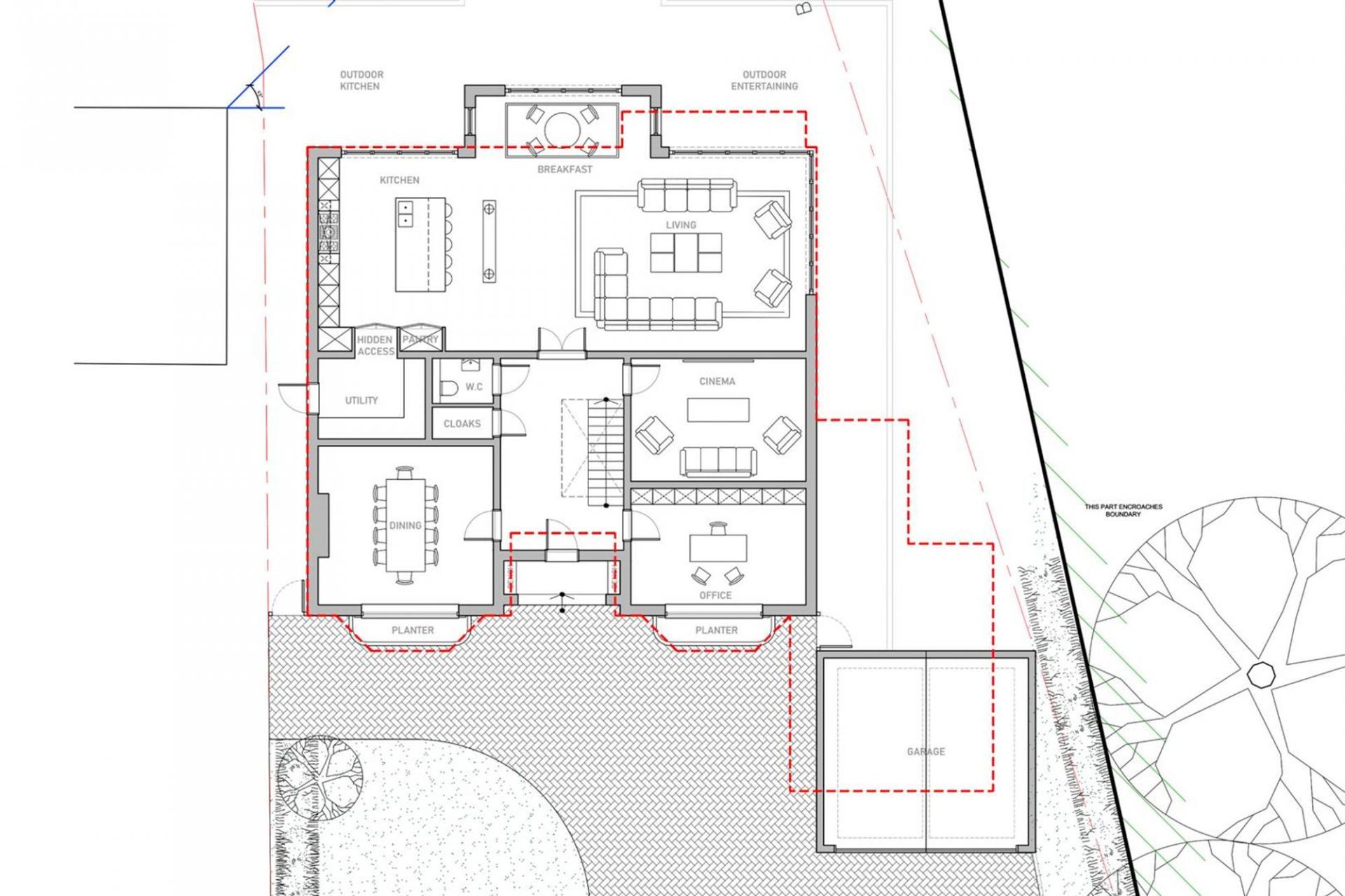
BUILD YOUR OWN BESPOKE HOME IN STOCK VILLAGE: Set on the periphery of Stock, within walking distance of the village, we present this sizeable plot with full planning permission.

Key Features:

  • FULL PLANNING PERMISSION
  • REPLACE THE EXISTING HOME WITH A 4,000 SQ FT DETACHED HOME
  • VIEWS OVER NEIGHBOURING LAKES & MEADOWLAND
  • PLOT OF CIRCA 0.4 ACRES

BUILD YOUR OWN BESPOKE HOME IN STOCK VILLAGE: Set on the periphery of Stock, within walking distance of the village, we present this sizeable plot with full planning permission to replace the existing dwelling with a 4,000 sq ft, detached home.

Being set at the end of Well Lane on the edge of the village envelope, the plot sides on to open, private meadow land with views of beautiful neighbouring lakes and woodland, with far reaching views. The plot itself measures circa 0.4 acres, with a beautiful, mature garden, and a good size frontage with ample parking and high hedgerows offering excellent privacy.

If you have been waiting for a suitable plot to build your own home in this wonderful village, with planning permission already in place (amendable), this could just be the perfect opportunity, offering the convenience of local amenities on your doorstep, coupled with beautiful countryside outlooks.

Please contact Adam Walker to discuss further, and full planning information can viewed via the Chelmsford Planning Portal, reference 22/01195/FUL. Please note, the tree proposed to be removed in the plans, has now been removed.

Read more

Important Information

  • This is a Freehold property.
  • This Council Tax band for this property is: F
Sorry! An EPC is not available for this property.

Tor Bryan, Ingatestone, Cm4

5 Bedroom Detached House

Tor Bryan, Ingatestone, CM4

  • lounges 3
  • beds 5
  • bathrooms 2
  • Mortgage
    Calculator

Lampern Crescent, Billericay, Cm12

4 Bedroom Detached House

Lampern Crescent, Billericay, CM12

  • lounges 3
  • beds 4
  • bathrooms 2
  • Mortgage
    Calculator

Selwood Road, Brentwood, Cm14

4 Bedroom House

Selwood Road, Brentwood, CM14

  • lounges 1
  • beds 4
  • bathrooms 2
  • Mortgage
    Calculator

Tiptree Road, Wickham Bishops, Cm8

4 Bedroom House

Tiptree Road, Wickham Bishops, CM8

  • lounges 2
  • beds 4
  • bathrooms 3
  • Mortgage
    Calculator

Whadden Chase, Ingatestone, Cm4

4 Bedroom House

Whadden Chase, Ingatestone, CM4

  • lounges 2
  • beds 4
  • bathrooms 3
  • Mortgage
    Calculator

Barn Mead, Chelmsford, Cm2

4 Bedroom House

Barn Mead, Chelmsford, CM2

  • lounges 3
  • beds 4
  • bathrooms 3
  • Mortgage
    Calculator

Update Cookies Preferences