GUIDE £5,000,000 - £5,500,000
Introducing Portland House, Hutton Mount.
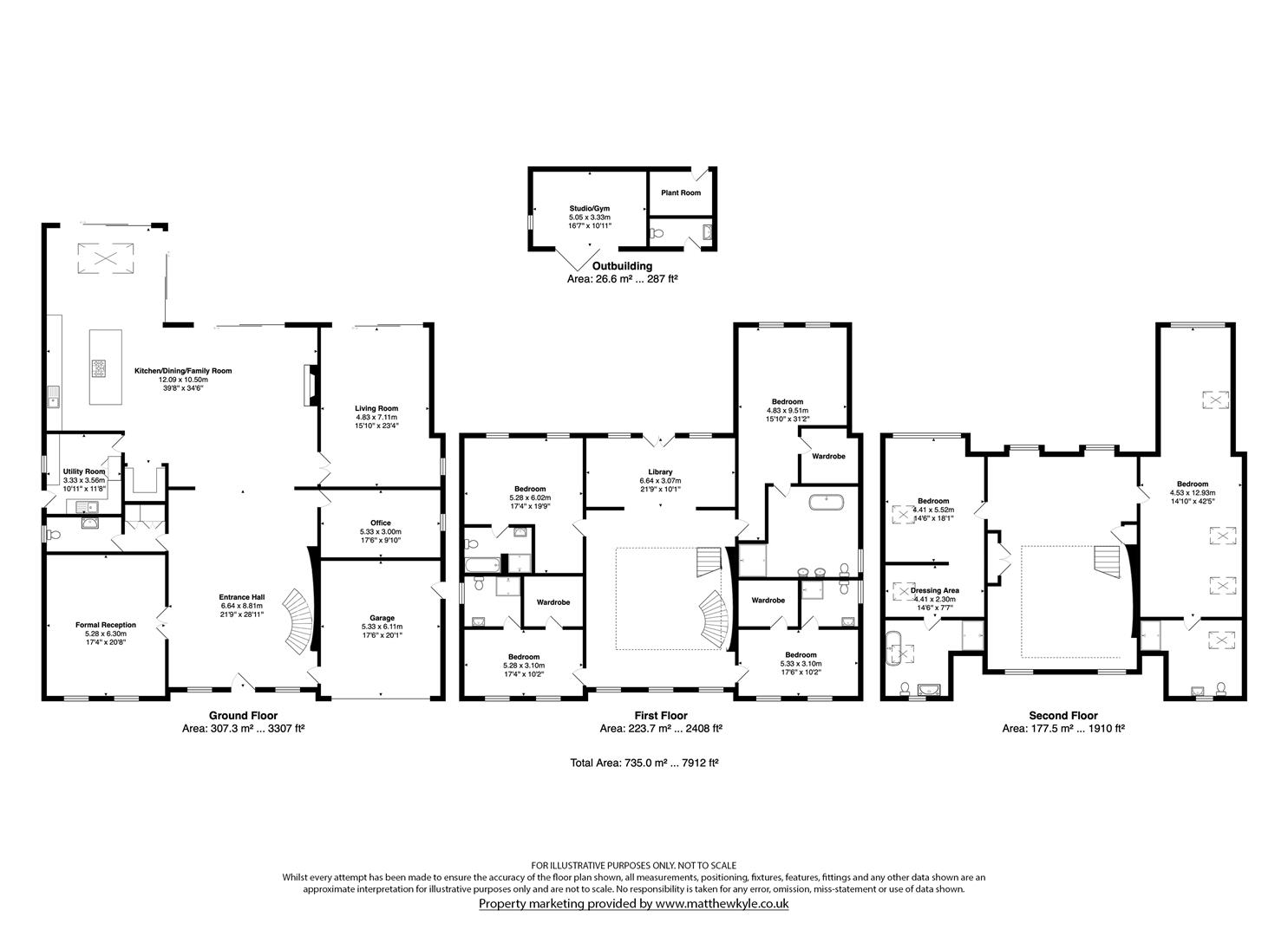
An exceptional newly built residence of over 7,600 sq ft, set within a 0.47 acre south-facing plot on the prestigious private estate of Hutton Mount. Designed in a classical Palladian style, with a stone portico entrance and refined sash windows by Mumford & Wood, the house combines timeless architecture with a specification of the highest calibre.
A triple-height reception hall with sweeping curved staircase offers an immediate sense of scale and grandeur, with open views through to the landscaped gardens and heated swimming pool. The principal living space is an impressive open-plan kitchen, dining and family area featuring a bespoke Poggenpohl kitchen with Miele appliances and a striking central island. Floor-to-ceiling, ultra-slim profile, sliding glass doors and a lantern roof flood the space with natural light, creating a seamless connection to the terraces and gardens. The formal reception rooms include a drawing room with stone fireplace, a versatile additional reception (ideal as a cinema or dining room), and a study. A Control4 home automation system, underfloor heating to the principal floors, and carefully curated lighting ensure comfort and luxury ambience throughout.
The first floor features a galleried landing opening to a library with Juliette balcony. The principal suite is air-conditioned, with a large dressing room and luxurious en-suite appointed with Villeroy & Boch and a Victoria & Albert freestanding bath. Three further bedroom suites complete this level, with two additional bedroom suites on the second floor, also air-conditioned, and a large versatile landing space. Each of the three floors is designed to impress.
Read more
GUIDE £5,000,000 - £5,500,000
Introducing Portland House, Hutton Mount.
An exceptional newly built residence of over 7,600 sq ft, set within a 0.47 acre south-facing plot on the prestigious private estate of Hutton Mount. Designed in a classical Palladian style, with a stone portico entrance and refined sash windows by Mumford & Wood, the house combines timeless architecture with a specification of the highest calibre.
A triple-height reception hall with sweeping curved staircase offers an immediate sense of scale and grandeur, with open views through to the landscaped gardens and heated swimming pool. The principal living space is an impressive open-plan kitchen, dining and family area featuring a bespoke Poggenpohl kitchen with Miele appliances and a striking central island. Floor-to-ceiling, ultra-slim profile, sliding glass doors and a lantern roof flood the space with natural light, creating a seamless connection to the terraces and gardens. The formal reception rooms include a drawing room with stone fireplace, a versatile additional reception (ideal as a cinema or dining room), and a study. A Control4 home automation system, underfloor heating to the principal floors, and carefully curated lighting ensure comfort and luxury ambience throughout.
The first floor features a galleried landing opening to a library with Juliette balcony. The principal suite is air-conditioned, with a large dressing room and luxurious en-suite appointed with Villeroy & Boch and a Victoria & Albert freestanding bath. Three further bedroom suites complete this level, with two additional bedroom suites on the second floor, also air-conditioned, and a large versatile landing space. Each of the three floors is designed to impress.
The south-facing gardens extend to circa 180 ft, with exceptional privacy, and expansive terraces surrounding the sunken heated pool. A cedar-clad garden room with cloakroom provides an ideal gym or office, while the front carriage driveway, behind twin electric gates, offers extensive parking in addition to a double garage. This outstanding home represents one of the most significant and beautifully finished residences on Hutton Mount, perfectly placed for Shenfield Broadway, its mainline station, and the Elizabeth Line into London.
Please note: Certain internal images have been virtually furnished for illustrative purposes.
Read less