Book a Property Valuation

About the property

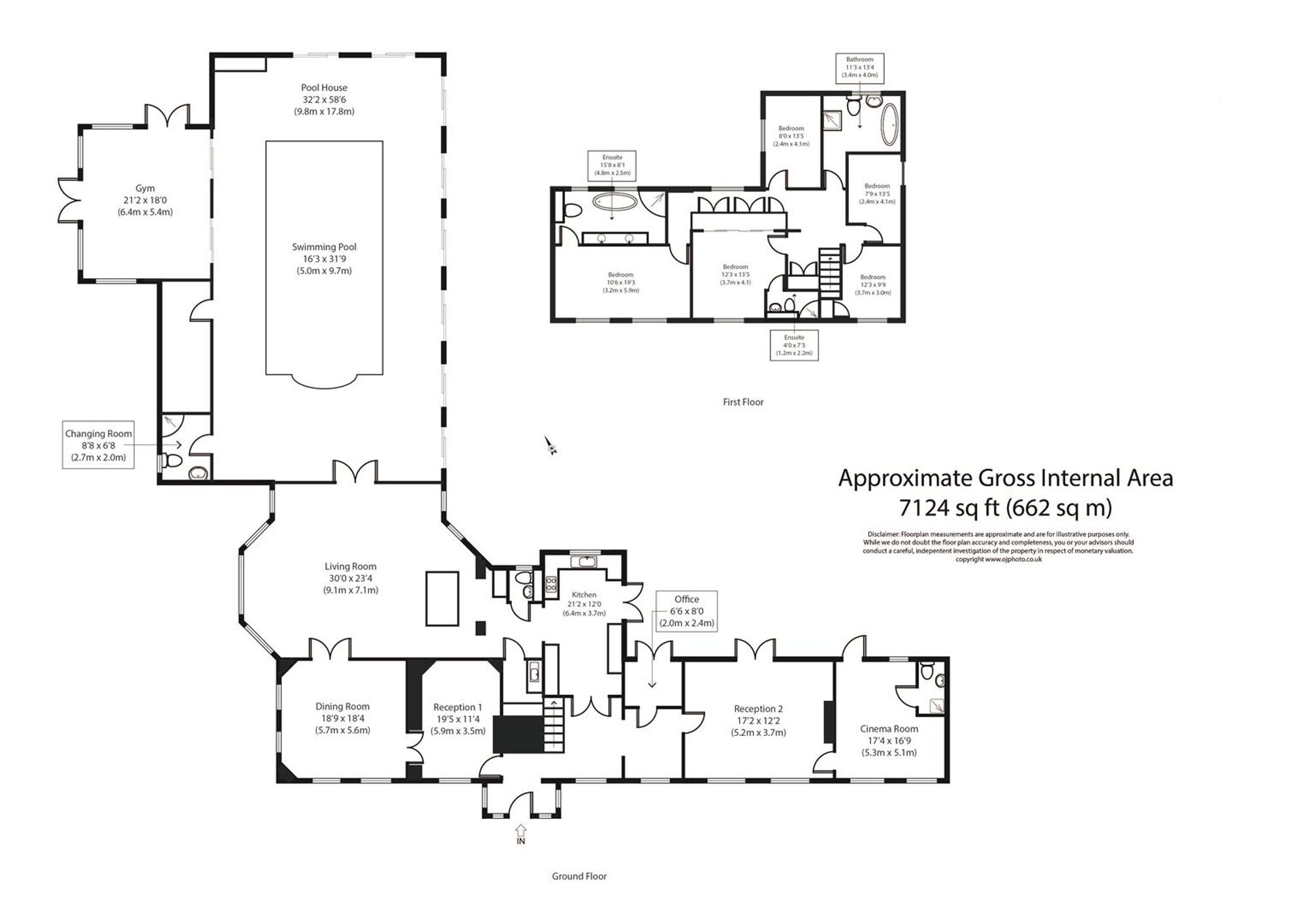
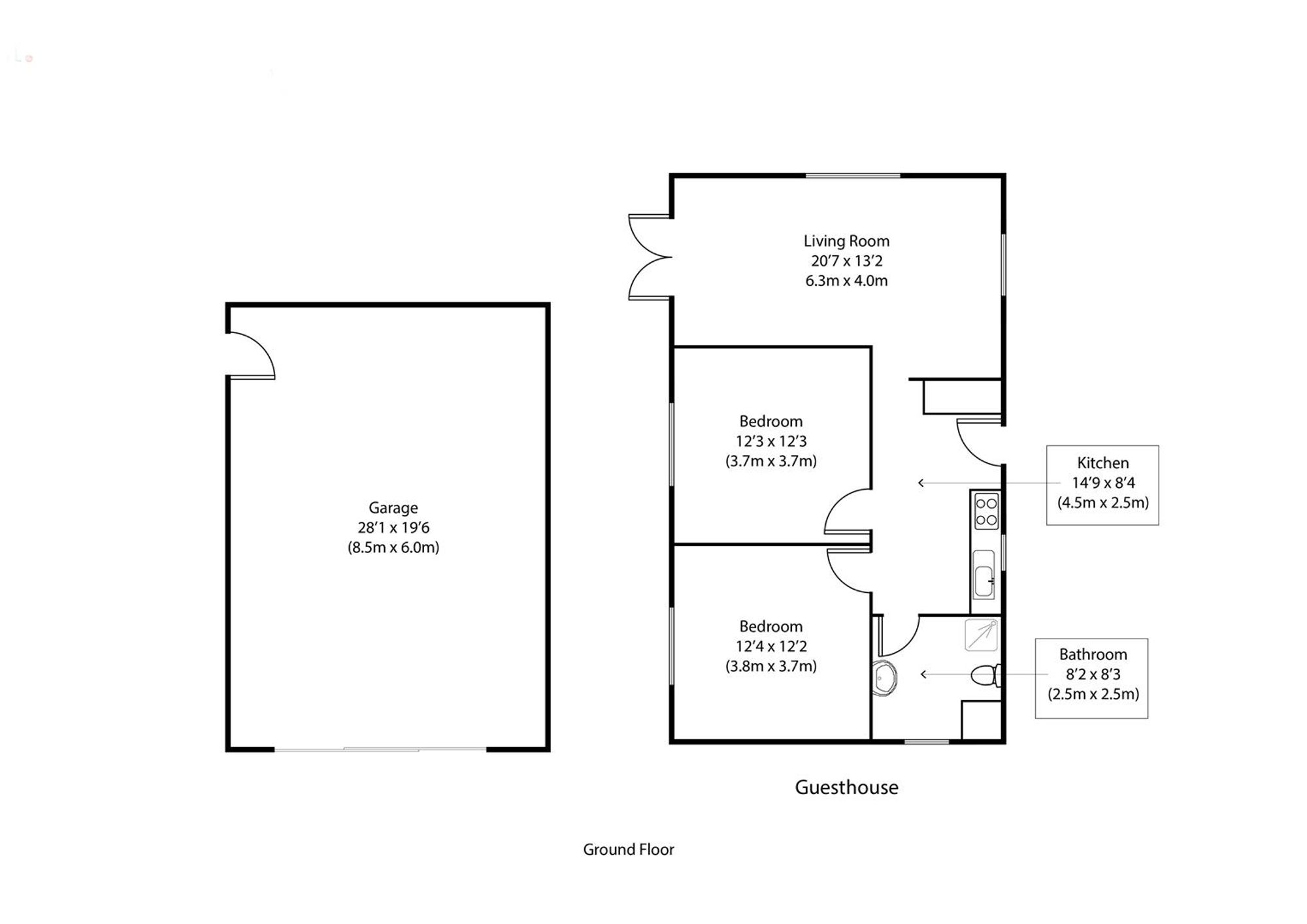
Palepit Farm is a stunning unique residence prominently positioned on Latchingdon Road in Cold Norton. The former Dairy Farm now extends to over 70... Read more

Property at a glance

Contact agent

Walkers People & Property

90 High Street

Ingatestone

Essex

CM4 9DW

United Kingdom

Tel: 01277 355005

sales@walkersestates.co.uk
Update Cookies Preferences